Cornerstone

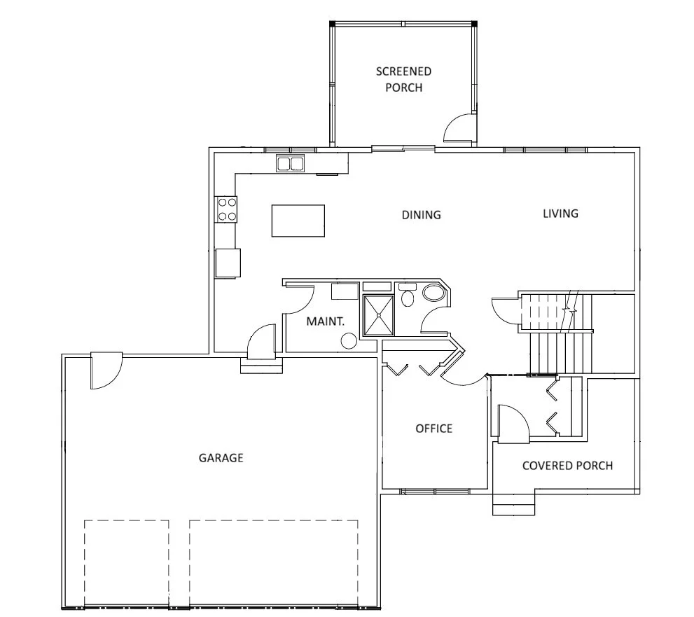
This thoughtfully designed 2002 square foot, 2 story home offers an efficient layout and beautiful golf course views, making it an ideal fit for a growing family. Featuring 3 bedrooms, 3 bathrooms, and a dedicated main floor office, this plan balances everyday function with comfortable living. The covered front porch creates a warm welcome, while the screened porch in back is the perfect place to relax and take in the scenic views. A finished 3-car garage adds convenience and extra room for storage. Upstairs, the layout is designed to make the most of the space while keeping bedrooms comfortably sized for family living. An optional walkout lower level can be added to the plan with additional living space, a bedroom, bathroom, and additional storage.

FLOOR PLAN

Main Floor

Second Floor

Second Floor

Optional Walk Out Level

Front View

Front View

Back View

Back View

Left View

Left View

Right View

Right View

POPULAR OPTIONS

Customize all of the finishing touches on this plan to make it your one of a kind home! Collaborate with Linda to ensure your personal style and taste is communicated through every detail. View examples below of popular finishes chosen by recent homeowners.

exterior:

Mocha stack stone and tan vinyl

Mocha stack stone and tan vinyl

Beach stack stone and gray vinyl

Beach stack stone and gray vinyl

Gray river stone and navy vinyl

Gray river stone and navy vinyl

Cream stack stone and red vinyl

Cream stack stone and red vinyl

cabinets:

Calico Maple

Calico Maple

Knotty Alder

Knotty Alder

Clear Alder cabinets with Calico Maple island

Clear Alder cabinets with Calico Maple island

White

White